
光と風が溢れる、
“明るく開放的な暮らし”
朝の光がふわりと差し込み、
心地よい風が家中を静かに通り抜ける。
そんな何気ない一瞬が、日々の心をほどき、
家族の時間を豊かに育てていく。
家は、ただ雨風をしのぐ場所ではなく、
人生のリズムを整え、家族の物語が積み重なる
“人生の舞台”でもあります。
だからこそgraftは、印象的でありながらも、
時代に左右されない普遍的なデザインと、
自然の心地よさを調和させ、
住まう人の生活そのものを光と風で満たすような
空間を目指しました。
ROHAKU建築設計が長年大切にしてきた
仕様や性能・品質にこだわりながらも、
コンパクトでシンプルな間取りと
良質な規格マテリアルを活用することで、
機能性やクオリティはそのままに、
手の届きやすい価格を実現した
コンセプトハウスブランドです。
Design Philosophy
graftでは、暮らしの中にある本質的な心地良さを日常で感じていただきたいと考えています。
それは家というモノと家に付け加えるモノをしっかりと設えることや家に余白や抜け感をつくること、素材を高めること、そして緑を添えることにより心地良い豊かな暮らしを提案します。
01 広く感じさせる設計
■基本の天井高さを抑え、吹抜けを作る

あえて天井高を抑えて吹抜けを設けることで、横に長く、縦に広く見せる。比較するものの対比が大きければ大きい程感じ方も変わります。
■壁やドアを極力少なくし、
視線が抜ける材料を使う

仕切りを少なくすることで圧迫感を無くし、広がりを感じることができます。鉄骨階段とガラスドアを採用することで、視覚的な広がりを生み出します。
02 自然とつながる暮らし
■庭に緑をつくる

室内から見える景色に緑を眺めることができることで、安らぎと落ち着きを与えてくれます。そして、四季の変化を愉しみ、季節を感じることができます。
■風景を取り込む窓

窓は単に光や風通しを行うものではなく、外の環境は日々変化しており、季節や天候、時間によって変わります。そんな今を感じられる外の環境を室内からも感じることで、日々大切な時間になります。
03 素材にこだわる
■仕上材には自然素材に近いものを採用

外壁や床、壁等はたくさんある資材の中から素材を感じられるものを選んでいます。
■存在感のあるキッチンと質を高める
デザイナーズ照明

機能性は当然に、デザイン性もあるキッチンを採用。また、機能性と意匠性を備えたデザイナーズ照明を採用し、室内に色を添える大切な役割をします。
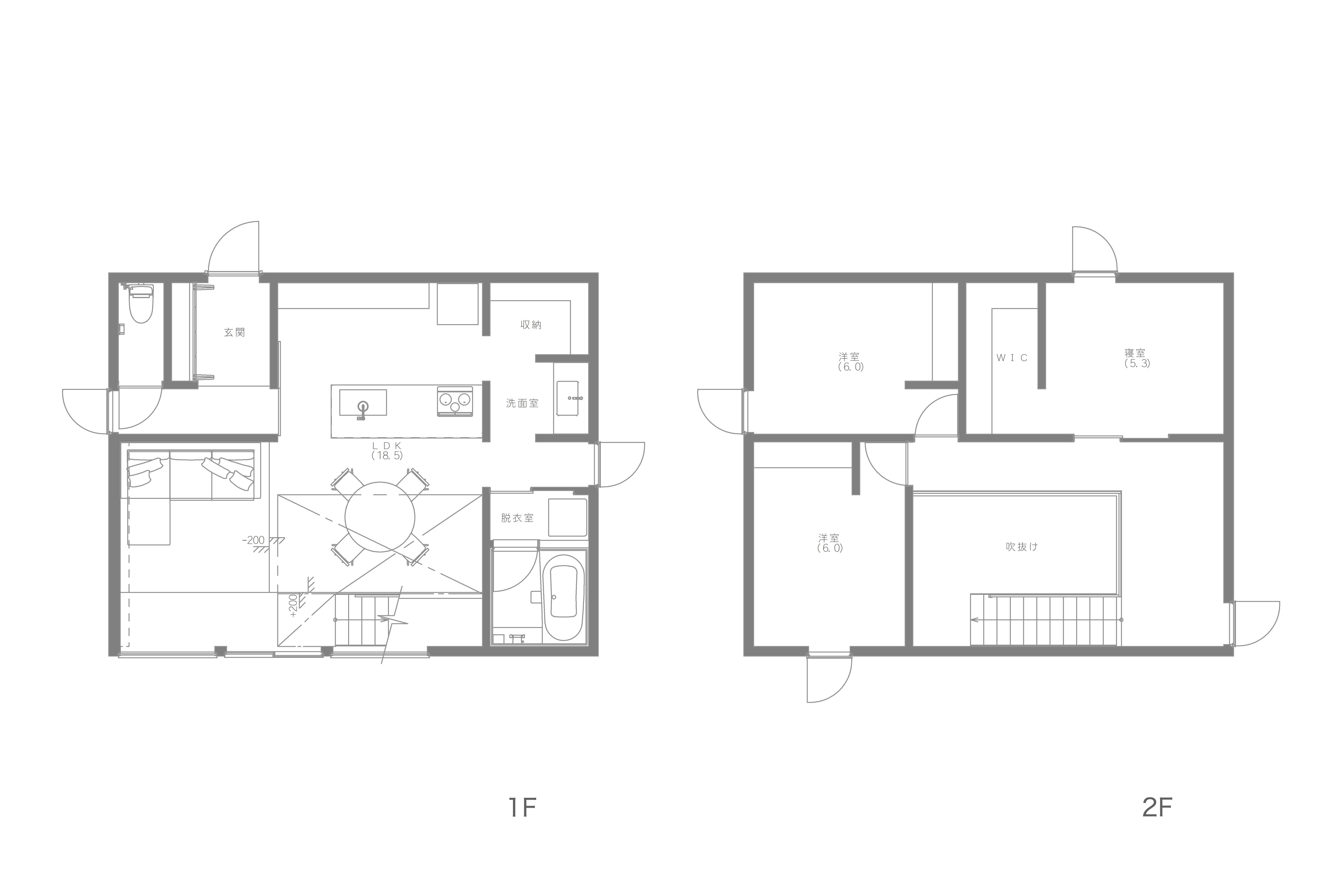
Plan Example
graftでは、コストを抑えるために、コンパクトな間取りにしながらも、空間的な広がりを感じることができる設計の工夫をしています。
お客様のライフスタイルや家族構成などに合わせた、最良の間取りを設計士が形にします。
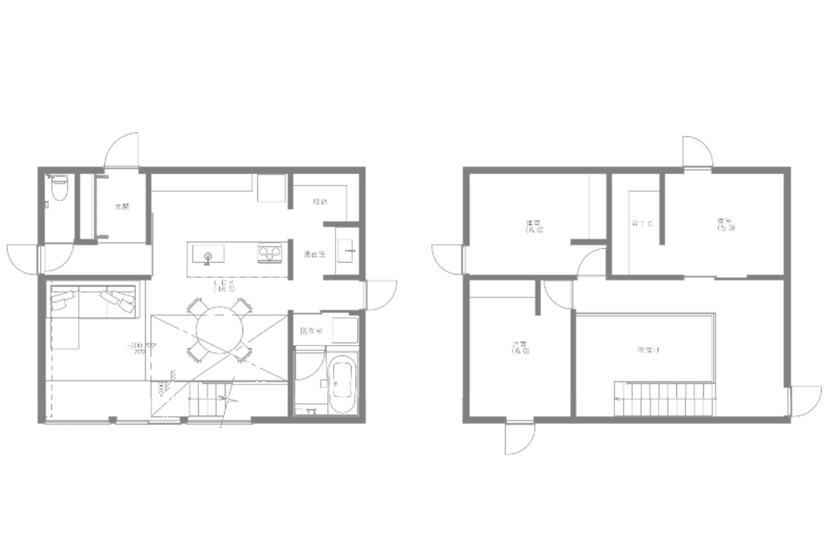
Case 01 29坪プラン


| 延床面積 | 97.35㎡(29.44坪) | 施工面積 | 104.80㎡(31.70坪) |
|---|
参考価格 2,460万円(税込み)
※上記価格に含まれないもの:カーテン工事・地盤改良工事・外構工事
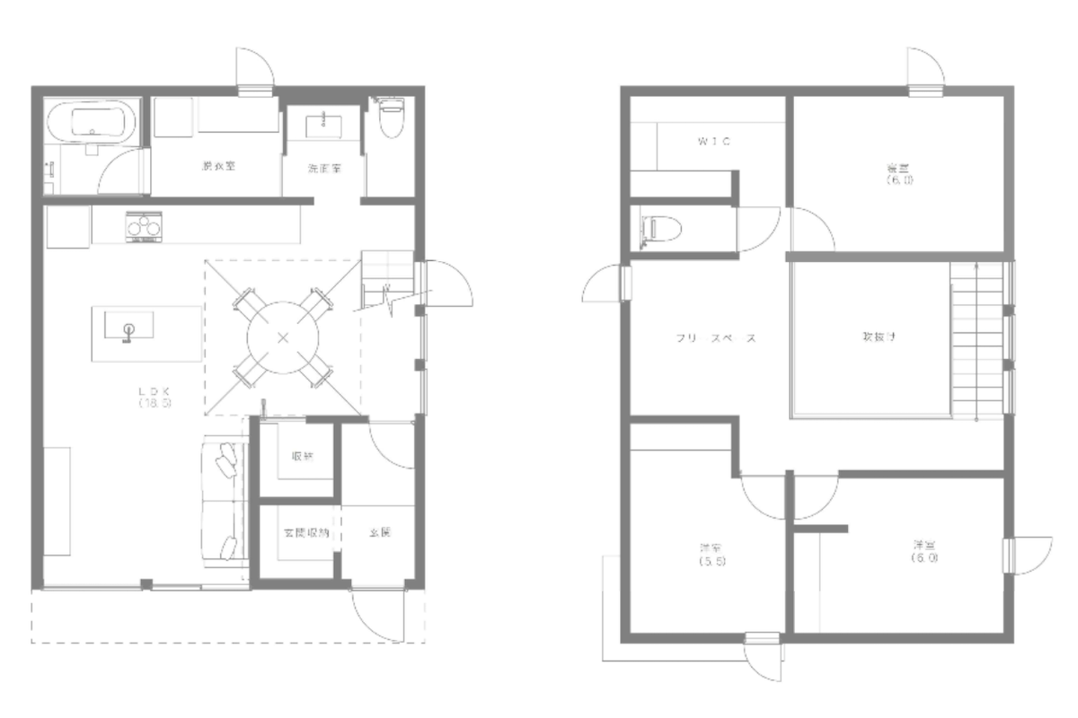
Case 02 31坪プラン


| 延床面積 | 103.16㎡(31.20坪) | 施工面積 | 110.61㎡(33.45坪) |
|---|
参考価格 2,490万円(税込み)
※上記価格に含まれないもの:カーテン工事・地盤改良工事・外構工事
Performance
デザイン性ももちろん大切ですが、自然災害の多い国だからこそ、安心して暮らし続け、安全に永く住み継げる性能の高い住まいが大切です。
graftを展開するROHAKU建築設計は、耐震性や断熱性・気密性などの様々な面において、第三者機関でしっかりと検査を行い、数字に裏打ちされた高い性能に自信を持っています。これからも他社よりも高い性能・品質基準を満たした家だけをご提供し続けます。
01 高い耐震性:全棟耐震等級3

全棟、耐震性の最高等級である「耐震等級3」を取得しています。
多くの住宅会社は「耐震等級3相当」と謳っているのをよく目にしますが、「3相当」は「3」ではありません。耐震等級3を取得するためには、建物の構造や基礎・地盤等のバランスを計算しなければならず、住宅性能評価機関への申請も必要になりますが、正式な認定を受けずに終わらせている会社が多く見受けられます。
地震大国日本で、いつか来ると言われている大地震に備えるためにも、お客様に永く安心して暮らしていただけるよう、耐震性も考えた家づくりを行っています。
02 高い断熱性:HEAT20・G2グレードレベル

京都府北部(5地域)における断熱性能等級5(HEAT20・G1グレード)以上の性能を基本としています(Ua値0.56以下)。
高断熱の家では、各部屋の温度差を抑えられ、ヒートショックによる健康リスクを低減できます。また、熱が逃げにくく保温効果が上がることで室内温度の変化が緩やかになり、快適性も向上します。冷暖房効果が上がることによって消費電力を抑えられ、電気代が節約できる経済的な暮らしも実現できます。
03 高い気密性(全棟気密測定実施)

家の断熱性が高いことは言うまでもないことですが、断熱材を施工するだけで良い訳ではなく、いかに隙間を少なく丁寧に施工できるかによって効果は変わってきます。
高い気密性を確保することで、建物内外の空気の流出や侵入を防ぎ、室内の計画換気効率を高めて空気の品質を向上させ、それが年中快適な住環境に繋がります。
また、graftでは長くお付き合いのある熟練の職人が1棟1棟丁寧に施工する体制を整えています。また、全棟で気密測定を行い、気密性を表すC値=0.45[㎠/㎡]以下を実現しています。
04 全棟長期優良住宅認定取得

graftでは全棟、「長期優良住宅」の認定を取得しています。
長期優良住宅とは「長期にわたり良好な状態で使用するための措置が講じられた優良な住宅」のことで、7つの技術基準の評価を満たす必要があり、国が認定した住宅のみ謳うことが許されています。長期優良住宅に認定されると、維持管理が安易に行えることに加え、補助金の活用や住宅ローン金利の引き下げ、税制の優遇措置、地震保険の割引等、数多くのメリットを受けることができます。
Quality/Warranty
私たちは、地域で家づくりのお手伝いをする中で痛感しているのが保証制度やアフターメンテナンスの重要性です。
お引き渡しをしてからが本当のお付き合いのスタートであることを信条とし、独自の保証やアフターメンテナンス体制を構築しています。
お客様が永く安心して暮らしていけるような保証制度やアフターメンテナンス体制に自信を持っており、建てた後もいつでも手厚くかつ迅速にサポートし続けます。
01 長期建物保証(完成後60年間)

第三者機関による建物保証(完成後10年間)に加え、「60年保証システム」の保証制度を採用しています。
お引渡し後の定期点検の実施や規定のタイミングで行う適切なメンテナンス工事を実施することで、最大60年間の保証をご利用いただくことができます。
02 地盤保証

工事期間中から20年間、第三者機関による地盤保証を行っています。
地盤は家の基礎となる部分です。安心・安全に暮らしていただけるよう、しっかりと地盤調査を行い、解析結果に基づく施工を行った上で工事を始めます。
基礎着工日に始まりお引き渡し後20年間、地盤の安全を保証いたします。
03 防蟻保証

構造躯体(1階外周部)には、シロアリによる食害と腐朽の両方を防ぐため、防腐剤と防蟻剤の両方を木材に含浸させる処理を行っております。さらに薬剤散布を行うことで10年間の保証が付きます。
また、基礎断熱材には、シロアリの侵入を防止する為にEPS発泡粒子一粒ごとに防蟻成分「チアメトキサム」が塗布されており、断熱材自体がシロアリの蟻道やコロニーになるのを防ぎます。基礎断熱材についても10年間の保証が付きます。
04 設備延長保証(お引渡し後10年)

お住まいになられてから設備機器のご利用に際して、もしもの時でもご不便を最小限に抑えるために、設備延長保証を行っています。
Flow
01 家づくり相談会のご予約

graftの家づくりが気になった方は、まずは家づくり相談会のご予約をお願いいたします。スタジオにはキッズスペースもございますので、お子さまを連れてご安心してお越しください。
お電話で「graftについて詳しく聞きたいのですが…」とお伝えください。または以下の予約フォームからもご予約いただけます。
福知山スタジオ
0120-036-044
舞鶴スタジオ
0120-976-692
豊岡スタジオ
0120-976-692
営業時間 10:00~19:00(水曜定休)
02 資金計画・土地探し

理想の家のバランスを考えて、全体のご予算から建物にかける金額や土地にかける金額、住宅ローンなどに関する費用をトータルで検討していきます。また、土地をお持ちでない方には、土地探しを行わせていただきます。土地をお持ちの方は、敷地状況を拝見させていただきます。
03 ラフプランのご提案

資金計画や土地探し・敷地調査が終わったら、ライフスタイルヒアリングをさせていただきます。そちらをベースにラフプランと概算見積金額をご提案させていただきます。
graftの世界観を体現した、美しく暮らしやすいプランを是非楽しみにしていてください。
福知山スタジオ
スタイリッシュでサロンのようなスタジオ。
開放的な打合せスペースとギャラリー、スタジオにはキッズルームや授乳室がございます。
保育士も常駐しておりますので、いつでもご安心してお越しください。

キッズスペースを設けていて、保育士も常駐しています。

広々とした打合せスペースは、壁に自然素材を用いた開放的な空間に。
福知山スタジオアクセス
〒620-0062 京都府福知山市和久市町99
営業時間 10:00~19:00
(水曜定休)
0120-036-044
※事前にご来店予約をいただけますと、ご案内がスムーズです。
お電話または下記の予約フォームからご予約ください。
舞鶴スタジオ
インダストリアルなカフェのようなスタジオ。
素材や質感を活かしたお洒落な空間になっています。

室内はモデルルームのようになっており、広さやデザインの参考になります。

キッズスペースと授乳室も併設しているため、お子様連れでも安心です。
舞鶴スタジオアクセス
〒624-0823 京都府舞鶴市字京田339-3
営業時間 10:00~19:00(水曜定休)
0120-976-692
※事前にご来店予約をいただけますと、ご案内がスムーズです。
お電話または下記の予約フォームからご予約ください。
豊岡スタジオ
シンプルながらも上質な佇まいにこだわったスタジオ。
ROHAKU建築設計の建築の世界観を体感いただける空間に仕上げました。


豊岡スタジオアクセス
〒668-0027 兵庫県豊岡市若松町6-43-2F
営業時間 10:00~19:00(水曜定休)
0120-976-692
※事前にご来店予約をいただけますと、ご案内がスムーズです。
お電話または下記の予約フォームからご予約ください。

